Major Announcement: DEMOLITION UNDERWAY AT FUTURE SITE OF $50M EVO ENTERTAINMENT DESTINATION Read →
Don’t miss what’s happening on Cleveland Street

Get updates as new projects and events unfold

Don’t miss what’s happening on Cleveland Street

Unified Redevelopment

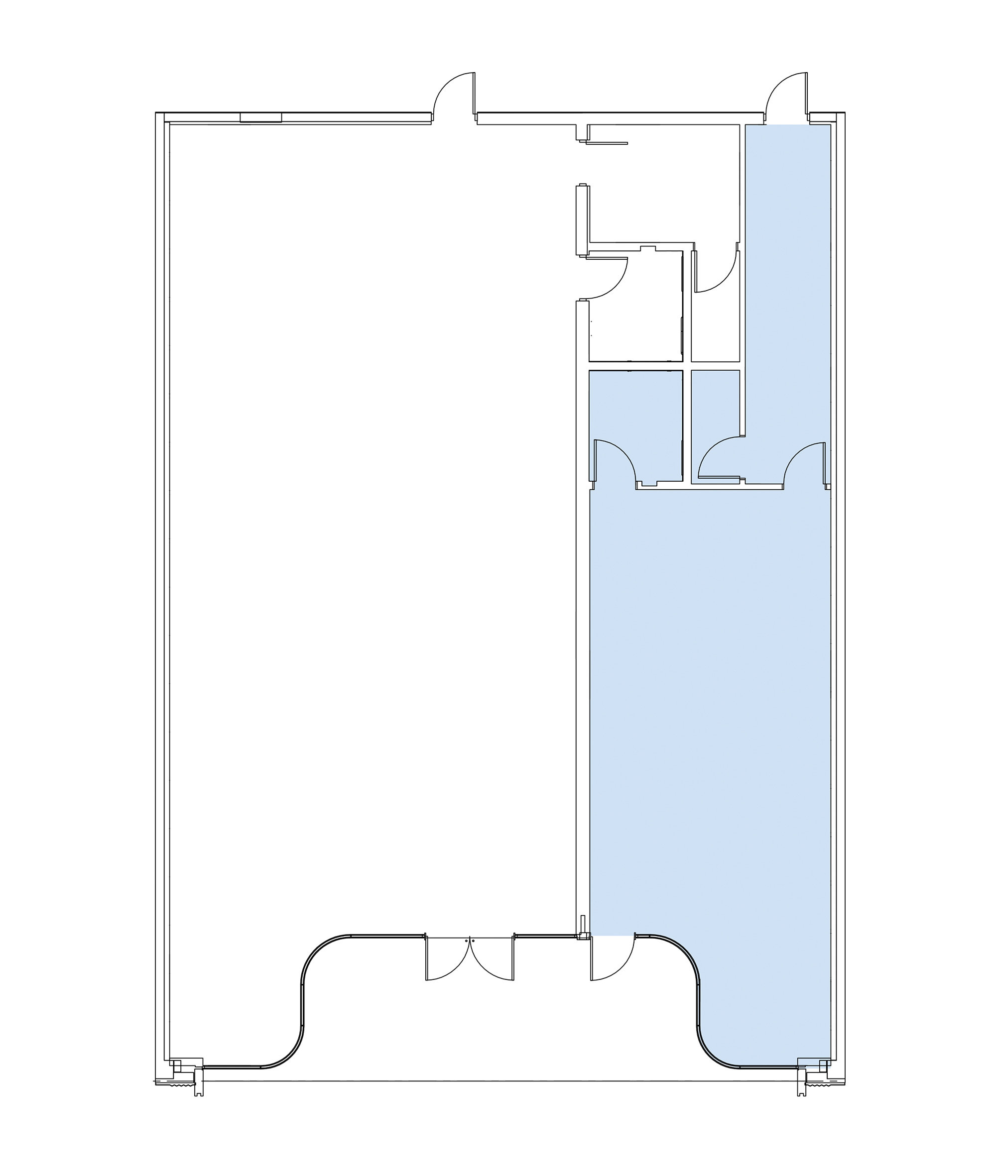
629–633 Cleveland Street

Reconfigured Retail Space Built for Visibility and Modern Use

629–633 Cleveland Street

Previously divided into smaller, less efficient units, this property is being restructured into larger, more functional retail spaces suited for contemporary tenants.

A redesigned façade—including curved glass elements and recessed entry points—creates a stronger street presence and improved visibility from the pedestrian corridor.

Located within the 600 block and directly connected to the activity generated by the Family Entertainment Center and surrounding redevelopment, the property sits within one of the most rapidly activating sections of Cleveland Street.

Modernized retail space within the 600 block—positioned to benefit from increasing visibility, improved layouts and sustained pedestrian activity along the corridor.

Key Facts

Total leasable area

2,817 square feet

Year built/renovated

1945/2026

Building class

Class B

Why this location matters.

Located within the most active portion of Cleveland Street

Surrounded by multiple simultaneous redevelopment projects

Positioned within a walkable, coordinated retail and dining corridor

Benefiting from increasing foot traffic and district-wide activation

Available Spaces

Specifications

1st Floor

Leasable area

835 square feet

Ceiling heights

12'

Space use

Health & wellness

Storefront window width

18' 8"

Condition

White box

HVAC

Carrier A/C units

Term

5–10 years

Windows

Hurricane rated

Rent type

Triple net (NNN)

Insulation

Eco-friendly denim

Electrical capacity

200 amps

Piping

Copper

Electric source

Solar panels supplementing electrical system

1st Floor

Leasable area

1,982 square feet

Ceiling heights

12'

Space use

Personal services

Storefront window width

30' 2"

Condition

White box

HVAC

Carrier A/C units

Term

5–10 years

Windows

Hurricane rated

Rent type

Triple net (NNN)

Insulation

Eco-friendly denim

Electrical capacity

400 amps

Piping

Copper

Electric source

Solar panels supplementing electrical system

629–633 Cleveland Street, Clearwater, FL 33755

Contact a Leasing Agent

Leasing exclusively managed by Hybridge Commercial Real Estate.

(727) 459-7607
scott@hybridgecre.com
Visit HybridgeCRE.com Contact Us

More Opportunities

Historic Restoration

The Telephone Building

A Flagship Restaurant and Retail Opportunity Within a Fully Restored Landmark

View Details →

Historic Restoration

Peoples Bank

A Prominent Corner Location Anchored by Historic Architecture

View Details →

Historic Restoration

F.W. Woolworth

An Iconic Storefront Reintroduced for Modern Retail or Dining

View Details →

Historic Restoration

Brown Brothers

A Restored Historic Structure Positioned for New Commercial Use

View Details →

Unified Redevelopment

635 Cleveland Street

A Premier Restaurant Opportunity Adjacent to the District’s Primary Entertainment Anchor

View Details →

Unified Redevelopment

639 Cleveland Street

Flexible Retail Space Within a Rapidly Activating Corridor

View Details →

Unified Redevelopment

623–627 Cleveland Street

Multiple Storefront Opportunities Designed for Continuous Street Activation

View Details →

Unified Redevelopment

645 Cleveland Street

A Gateway Location Connecting the Pinellas Trail and the Cleveland Street Corridor

View Details →