Major Announcement: DEMOLITION UNDERWAY AT FUTURE SITE OF $50M EVO ENTERTAINMENT DESTINATION Read →
Don’t miss what’s happening on Cleveland Street

Get updates as new projects and events unfold

Don’t miss what’s happening on Cleveland Street

Unified Redevelopment

635 Cleveland Street

A Premier Restaurant Opportunity Adjacent to the District’s Primary Entertainment Anchor

635 Cleveland Street

Positioned at the entrance to downtown and adjacent to the Family Entertainment Center, 635 Cleveland Street is immediately connected to the flow of activity moving through the corridor.

The building is being reconfigured to support strong visibility, open frontage and direct engagement with the sustained pedestrian traffic generated by the entertainment anchor and surrounding development.

With continuous activity driven by the Family Entertainment Center, this location benefits from day-to-evening traffic at a scale not found elsewhere along Cleveland Street.

One of the most strategically positioned restaurant opportunities in the district—directly connected to the energy and movement generated by the Family Entertainment Center.

Key Facts

Total leasable area

4,302 square feet

Year built

2026
(Ground-up redevelopment)

Building class

Class A-2

Why this location matters.

Located within the most active portion of Cleveland Street

Surrounded by multiple simultaneous redevelopment projects

Positioned within a walkable, coordinated retail and dining corridor

Benefiting from increasing foot traffic and district-wide activation

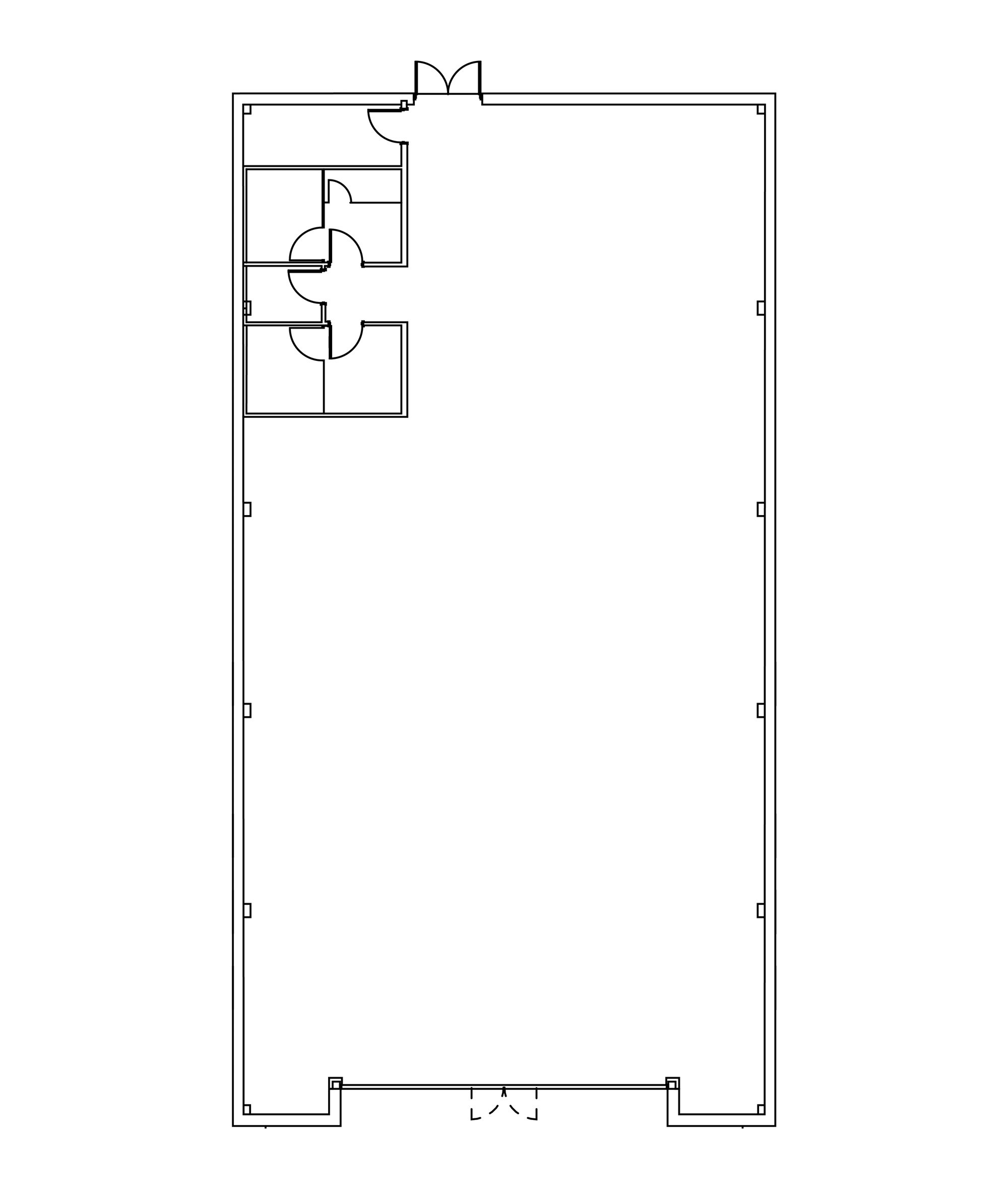
Available Space

Specifications

1st Floor

Leasable area

4,302 square feet

Space use

Full-service restaurant

Condition

Restaurant shell

Term

10 years

Rent type

Triple net (NNN)

Electrical capacity

800 amps

Electric source

Solar panels supplementing electrical system

Ceiling heights

16'

Storefront window width

30'

HVAC

Carrier A/C units

Sewage line

1,500-gallon hydromechanical grease interceptor

Windows

Hurricane rated

Insulation

Eco-friendly denim

Piping

Copper

635 Cleveland Street, Clearwater, FL 33755

Contact a Leasing Agent

Leasing exclusively managed by Hybridge Commercial Real Estate.

(727) 459-7607
scott@hybridgecre.com
Visit HybridgeCRE.com Contact Us

More Opportunities

Historic Restoration

The Telephone Building

A Flagship Restaurant and Retail Opportunity Within a Fully Restored Landmark

View Details →

Historic Restoration

Peoples Bank

A Prominent Corner Location Anchored by Historic Architecture

View Details →

Historic Restoration

F.W. Woolworth

An Iconic Storefront Reintroduced for Modern Retail or Dining

View Details →

Historic Restoration

Brown Brothers

A Restored Historic Structure Positioned for New Commercial Use

View Details →

Unified Redevelopment

639 Cleveland Street

Flexible Retail Space Within a Rapidly Activating Corridor

View Details →

Unified Redevelopment

623–627 Cleveland Street

Multiple Storefront Opportunities Designed for Continuous Street Activation

View Details →

Unified Redevelopment

629–633 Cleveland Street

Reconfigured Retail Space Built for Visibility and Modern Use

View Details →

Unified Redevelopment

645 Cleveland Street

A Gateway Location Connecting the Pinellas Trail and the Cleveland Street Corridor

View Details →