Major Announcement: DEMOLITION UNDERWAY AT FUTURE SITE OF $50M EVO ENTERTAINMENT DESTINATION Read →
Don’t miss what’s happening on Cleveland Street

Get updates as new projects and events unfold

Don’t miss what’s happening on Cleveland Street

Unified Redevelopment

645 Cleveland Street

A Gateway Location Connecting the Pinellas Trail and the Cleveland Street Corridor

645 Cleveland Street

Positioned where Cleveland Street meets the Pinellas Trail—and directly caddy-corner to the Family Entertainment Center—645 Cleveland Street sits at one of the most active and visible intersections in downtown Clearwater.

This location captures continuous movement from the Pinellas Trail while connecting directly to the flow of activity generated by the Family Entertainment Center and the broader Cleveland Street corridor.

The building is being redeveloped to support strong visibility, open frontage and direct engagement with both pedestrian and cyclist traffic—creating a space that operates at the intersection of movement, destination and experience.

A gateway location at the convergence of the Pinellas Trail and Cleveland Street—positioned to capture sustained activity from both the trail and the district’s primary entertainment anchor.

Key Facts

Total leasable area

2,972 square feet

Year built

2026
(Ground-up redevelopment)

Building class

Class A-2

Parking

Rear parking

Why this location matters.

Located within the most active portion of Cleveland Street

Surrounded by multiple simultaneous redevelopment projects

Positioned within a walkable, coordinated retail and dining corridor

Benefiting from increasing foot traffic and district-wide activation

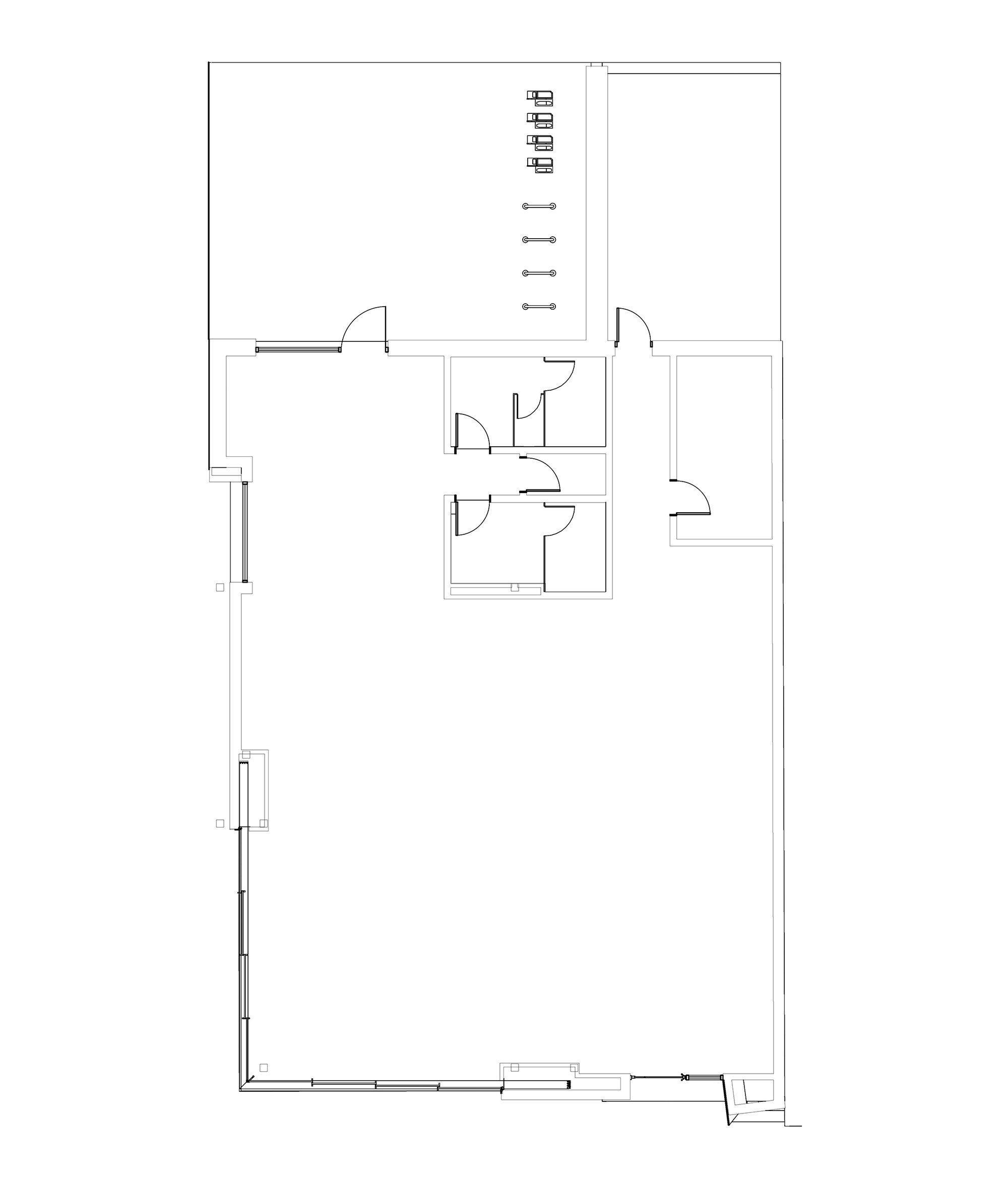
Available Space

Specifications

1st Floor

Leasable area

2,972 square feet

Ceiling heights

14' 8"

Space use

Service retail/Café hybrid

Storefront window width

47'

Condition

Restaurant shell

HVAC

Carrier A/C units

Term

5–10 years

Windows

Hurricane rated

Rent type

Triple net (NNN)

Insulation

Eco-friendly denim

Electrical capacity

800 amps

Piping

Copper

Electric source

Solar panels supplementing electrical system

645 Cleveland Street, Clearwater, FL 33755

Contact a Leasing Agent

Leasing exclusively managed by Hybridge Commercial Real Estate.

(727) 459-7607
scott@hybridgecre.com
Visit HybridgeCRE.com Contact Us

More Opportunities

Historic Restoration

The Telephone Building

A Flagship Restaurant and Retail Opportunity Within a Fully Restored Landmark

View Details →

Historic Restoration

Peoples Bank

A Prominent Corner Location Anchored by Historic Architecture

View Details →

Historic Restoration

F.W. Woolworth

An Iconic Storefront Reintroduced for Modern Retail or Dining

View Details →

Historic Restoration

Brown Brothers

A Restored Historic Structure Positioned for New Commercial Use

View Details →

Unified Redevelopment

635 Cleveland Street

A Premier Restaurant Opportunity Adjacent to the District’s Primary Entertainment Anchor

View Details →

Unified Redevelopment

639 Cleveland Street

Flexible Retail Space Within a Rapidly Activating Corridor

View Details →

Unified Redevelopment

623–627 Cleveland Street

Multiple Storefront Opportunities Designed for Continuous Street Activation

View Details →

Unified Redevelopment

629–633 Cleveland Street

Reconfigured Retail Space Built for Visibility and Modern Use

View Details →