Major Announcement: DEMOLITION UNDERWAY AT FUTURE SITE OF $50M EVO ENTERTAINMENT DESTINATION Read →
Don’t miss what’s happening on Cleveland Street

Get updates as new projects and events unfold

Don’t miss what’s happening on Cleveland Street

Unified Redevelopment

639 Cleveland Street

Flexible Retail Space Within a Rapidly Activating Corridor

639 Cleveland Street

639 Cleveland Street is being repositioned to support modern retail use, with improved layouts, enhanced visibility and a stronger connection to the street.

Located within the 600 block—directly connected to the activity generated by the Family Entertainment Center and surrounding redevelopment—the property benefits from a rapidly increasing concentration of destinations.

Designed for flexibility, the space can accommodate a range of retail or service-oriented concepts, supporting operators seeking adaptable layouts within an active and evolving corridor.

A flexible retail opportunity within one of the fastest-activating sections of Cleveland Street—positioned to benefit from the sustained activity generated by the surrounding district.

Key Facts

Total leasable area

11,283 square feet

Year built/renovated

1927/2026

Building class

Class B

Why this location matters.

Located within the most active portion of Cleveland Street

Surrounded by multiple simultaneous redevelopment projects

Positioned within a walkable, coordinated retail and dining corridor

Benefiting from increasing foot traffic and district-wide activation

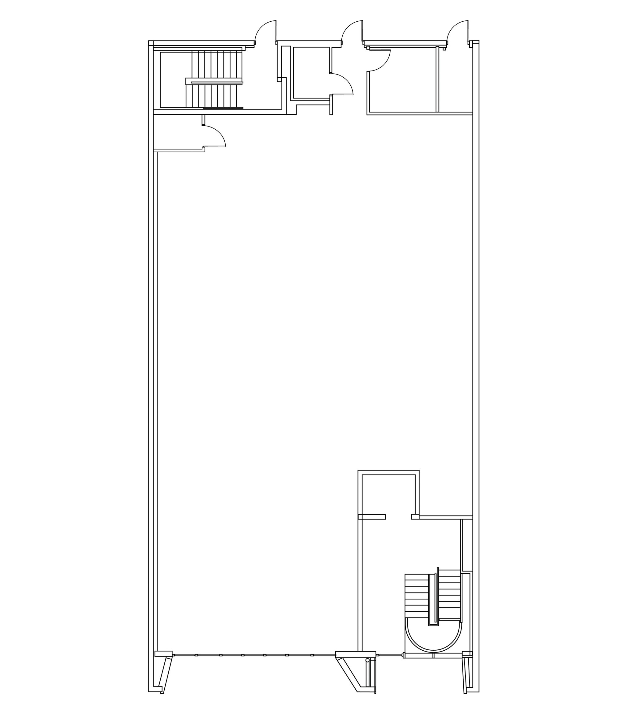
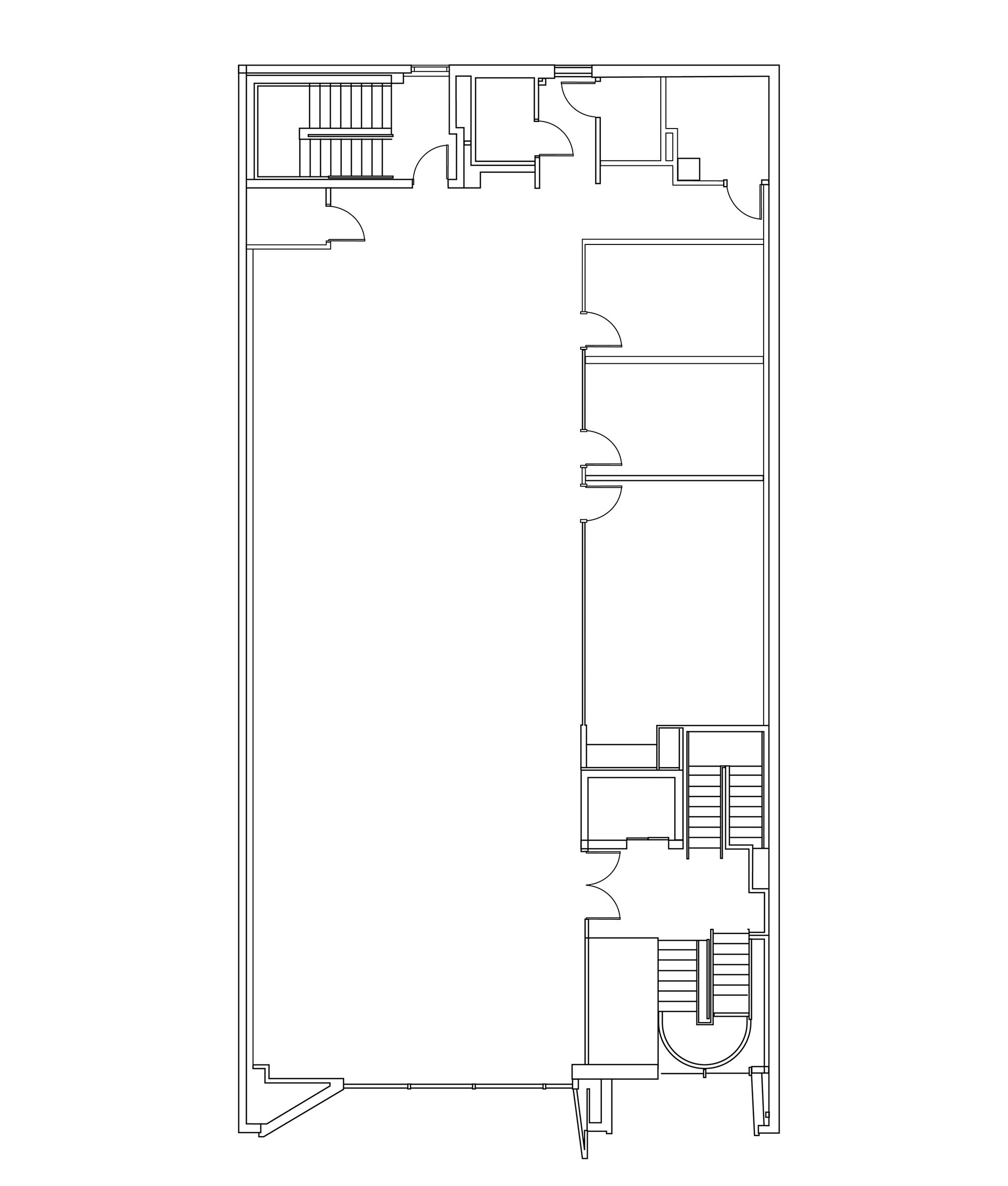
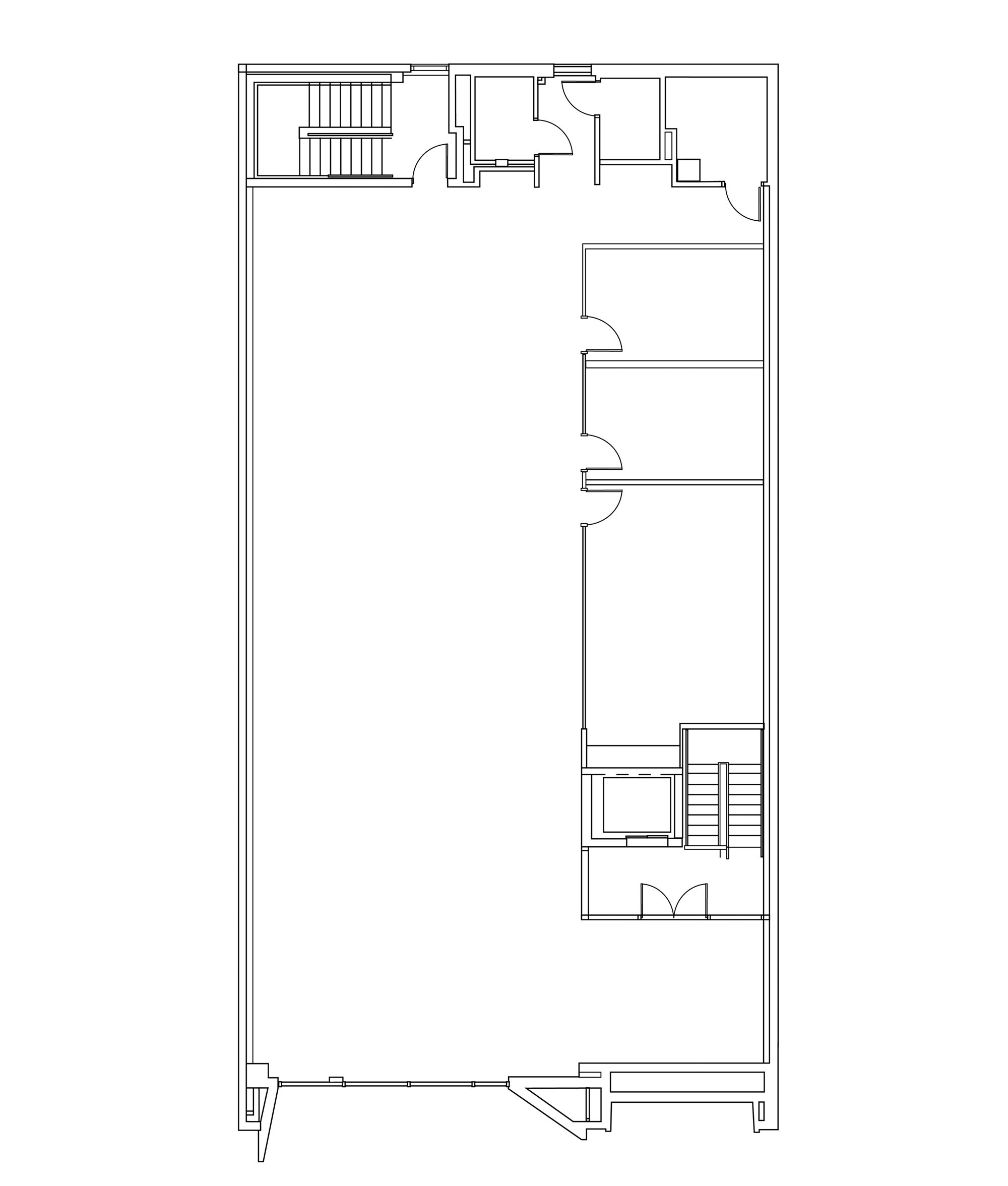
Available Spaces

Specifications

1st Floor

Leasable area

3,438 square feet

Ceiling heights

8' 5¾"

Space use

Apparel & accessories

Storefront window width

23' 9"

Condition

White box

HVAC

Carrier A/C units

Term

5–10 years

Windows

Hurricane rated

Rent type

Triple net (NNN)

Insulation

Eco-friendly denim

Electrical capacity

600 amps

Piping

Copper

Electric source

Solar panels supplementing electrical system

2nd Floor

Leasable area

3,830 square feet

Electric source

Solar panels supplementing electrical system

Space use

Office

Ceiling heights

10' 1"

Condition

White box

HVAC

Carrier A/C units

Term

5–10 years

Windows

Hurricane rated

Rent type

Triple net (NNN)

Insulation

Eco-friendly denim

Electrical capacity

400 amps

Piping

Copper

3rd Floor

Leasable area

4,015 square feet

Electric source

Solar panels supplementing electrical system

Space use

Office

Ceiling heights

11' 5"

Condition

White box

HVAC

Carrier A/C units

Term

5–10 years

Windows

Hurricane rated

Rent type

Triple net (NNN)

Insulation

Eco-friendly denim

Electrical capacity

400 amps

Piping

Copper

639 Cleveland Street, Clearwater, FL 33755

Contact a Leasing Agent

Leasing exclusively managed by Hybridge Commercial Real Estate.

(727) 459-7607
scott@hybridgecre.com
Visit HybridgeCRE.com Contact Us

More Opportunities

Historic Restoration

The Telephone Building

A Flagship Restaurant and Retail Opportunity Within a Fully Restored Landmark

View Details →

Historic Restoration

Peoples Bank

A Prominent Corner Location Anchored by Historic Architecture

View Details →

Historic Restoration

F.W. Woolworth

An Iconic Storefront Reintroduced for Modern Retail or Dining

View Details →

Historic Restoration

Brown Brothers

A Restored Historic Structure Positioned for New Commercial Use

View Details →

Unified Redevelopment

635 Cleveland Street

A Premier Restaurant Opportunity Adjacent to the District’s Primary Entertainment Anchor

View Details →

Unified Redevelopment

623–627 Cleveland Street

Multiple Storefront Opportunities Designed for Continuous Street Activation

View Details →

Unified Redevelopment

629–633 Cleveland Street

Reconfigured Retail Space Built for Visibility and Modern Use

View Details →

Unified Redevelopment

645 Cleveland Street

A Gateway Location Connecting the Pinellas Trail and the Cleveland Street Corridor

View Details →